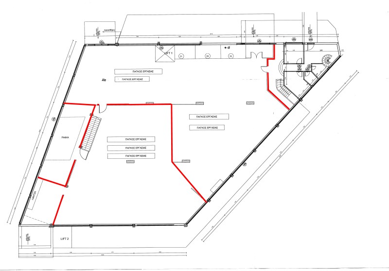
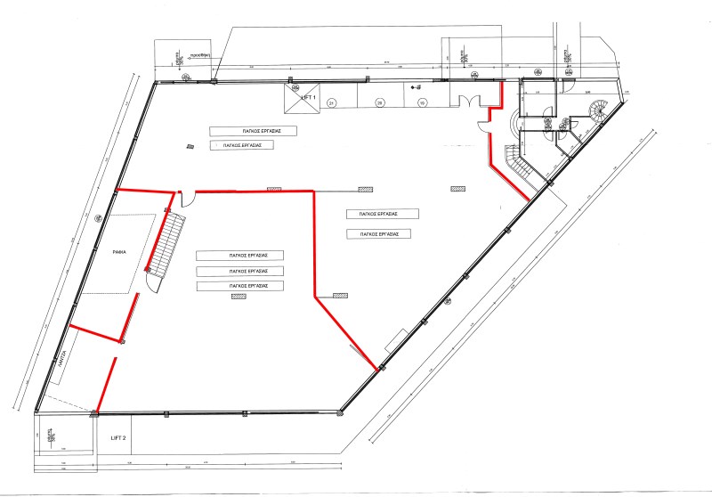
Κατασκευή πυροδιαμερισμάτων σε Βιομηχανία Δείκτη REI 240

Κατασκευή πυροδιαμερισμάτων σε Βιομηχανία Δείκτη REI 240

Κατασκευή πυροδιαμερισμάτων σε Βιομηχανία Δείκτη REI 240

Ολοκλήρωση Έργου:

19-12-2016 00:00:00

Περιγραφή

Κατασκευή πυροδιαμερισμάτων σε Βιομηχανία Δείκτη REI 240

Κατηγορία

Ιδιωτικά Έργα

Υπεύθυνος: Φώτης Γ. Τσακίρογλου
Διπλ.Πολιτικός Μηχανικός Μ.sc-Ε.Δ.Ε

Διεύθυνση: Εθνικής Αντίστασης 7,

Σέρρες, Τ.Κ.:62122

Email: info@mixanoikon.gr

Τηλέφωνο: +30 23210 58586

Fax: +30 23210 58584

Έξτρα Υπηρεσίες

Βρείτε μας στο Facebook